大公府I180㎡平層的極簡美學
-
大公府I180㎡平層的極簡美學
設計說明:
本案業主一家四口居住,為業主的改善型居住空間,整體風格偏向于極簡風格,對收納和空間感都很有要求,最大限度的解放孩子的天性,業主希望屬于這里的生活應該是自由且松弛的,留白但不寡淡、寧靜但不冷清,朝書暮畫......
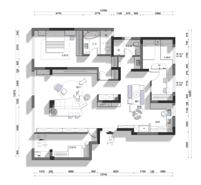
原始戶型圖

平面方案圖

客廳



大橫廳的構圖,將起居室與餐廳、書房(兼茶室)平鋪展開,空間之間的互動變得直接明確。米白色的家具配合暖灰色的墻壁,展現出生活的溫柔表情。用沙發和茶臺隔開了客廳和書房,給了空間不同維度的舒適感。心之向往的大橫廳,果然連空氣都是自有的味道。
餐廳

餐廳與廚房位于同一空間,半開放式的設計讓光線最大限度的透過來。餐桌選用大理石面板,細膩的紋理富有質感。搭配木制的餐邊柜,增添空間的親切感,打造了一個溫馨舒適的用餐空間。
主臥室

簡約的黑白灰勾勒出臥室的輪廓,搭配木制板材,沒有多余的裝飾,用材質本身的力量訴說質感,用大片的留白營造休閑舒適的氛圍,然后用時間去填滿它。
兒童房

兩個房間打通后,空間感更強,給兩個小朋友配備了學習空間、收納空間以及休息區;大面積的窗戶也能在白天帶來很好的光線,讓孩子自由自在的成長。次臥室

次臥以簡單和干凈作為主題。門口到洗衣區的動線設計的很舒適,簡明的配色搭配上舒適的床具。整個臥室內都充滿了溫馨之感。
廚房

半開放的廚房設計把餐廚空間合二為一,動線也更為舒適,U字形的櫥柜最大程度的保證了廚房的收納空間,除了洗切炒的流程更舒適,櫥柜和餐邊柜視覺延伸也是一大亮點。
衛生間


衛生間中,大面積的石材元素細膩而交錯的紋理呈現出空間的輕奢質感,富有設計感的橢圓形浴缸不但能為主人洗去一天的疲勞,還為空間增添了優雅氣息。
空間的極簡并非是三言兩語便能描繪的美學;極簡在線條的婉轉中,亦在每一處靈感乍現的地方!
家外是熱鬧喧嘩的世界
家中是私享隨意的人生
都說“距離產生美”,
但是每一個家都是“獨一無二”的!
上一篇: 御賓府I400㎡疊墅,大繁至簡,質樸自然
