230m2極簡與新中·入則雅致 出則寧靜
-
230m²極簡與新中·入則雅致 出則寧靜
設計師不只是一個很會設計的人,
而是抱著設計概念來過生活的人、活下去的人。
——原研哉
張大磊
設計總監 十年經驗
案例賞析
Case Appreciation
項目名稱:碧桂園·龍城
設計面積:230m²
設計機構:河南尚茂裝飾工程有限公司
客戶設計需求:業主是一位女性,基本一個人居住。一進門對著樓梯覺得不合理,廚房空間小,想要島臺,可考慮開放式廚房。想要開放式書房以及主衛改衣帽間。地下室想要一個休閑吧臺,開放式影音,品茶區,健身瑜伽區,多功能區以及樓梯下方想要景觀。
設計師根據業主的需求以及自身的設計想法合理規劃出了本案設計。

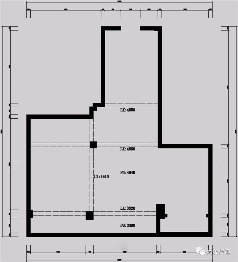
一層原始戶型圖

負一層原始戶型圖


一層、負一層區域改動示意圖

一層平面方案圖
我們首先把一進入戶區域的樓梯選擇更改位置,讓玄關區域更加開闊舒適,樓梯位置移到右側陽臺位置。廚房區域也擴大做了開放式廚房處理,實現了餐廚一體化的設計。沙發后方則設計為了開放式書房,主衛改為衣帽間。

負一層平面方案圖
負一層主要為休閑娛樂的功能區,分為了動靜兩個大的板塊。靜區為封閉空間的儲藏室,動區則是開放式處理的影音區、健身瑜伽休閑區、品茶區以及吧臺區域。

夾層平面方案圖
夾層區域則為兩個休閑區域,一個半開放區域和開放式的閱讀休閑區域。和對應負一層的挑空區域,依據黃金分割比完美分割,塑造深層空間立體感。
效果圖

我們基于現代生活理念,結合東方文化思維,來平衡傳統與現代的辯證關系。東方、簡約、均衡、人文與藝術為核心設計理念,設計師運用簡約之筆勾勒東方美學藝術。

在開放式空間設計中,客廳、餐廳、休閑陽臺、書房相結合組成公共區域,讓每個人在做自己的事的同時可以實現互動性,又體現出每個空間的獨立性。

餐廚一體化的設計,現在也越來越多的用運用在我們的家裝設計中,一般是開放式或半開放式廚房,可以節省空間,讓空間在視覺上更闊朗。

L型沙發將書房與客廳巧妙隔開,化繁為簡的設計體現出開放空間的現代感與層次感。

玄關區域不僅連接客廳餐廳兩個空間,也起著承上啟下的作用,以及進入室內空間的第一印象。靈活運用木色,給與空間溫暖的觸感,秩序井然又不失溫度。
主臥室及衣帽間
設計師選擇讓光自主營造空間,交還它空間表達的話語權,讓光影成為了家中最好的光景,同時也讓居住者在光與影之中感受到家的溫度,滿足對家的夢想與期待。

負一層的中空挑高區域,設計師摒棄了大眾化的布局思想,沒有選擇隔層,讓空間得以釋放。因此,會客廳高聳的背景墻以及裝飾柜架呈現在我們面前,直伸至夾層頂。

樓梯平臺下方空間做了水吧臺,也是現代偏中式的設計,配色上也與大廳整體保持一致,整體設計線條分明,極致簡約。
山隨宴坐圖畫出,水作夜窗風雨來。觀水觀山皆得妙,更將何物污靈臺。在這個空間里,居住者可以,烹茶待客,也可以焚香撫琴,等等。
家庭影音室,也是現在對生活品質更高一層的追求,也是一家人增進感情,日?;拥男驴臻g,我們相信,居住者一家未來在這個空間里,會有更多的生活片段和深刻的生活記憶,來為我們的這個家庭影音休閑區賦予靈魂。
新中式之美是一種意境之美,中式器具,自帶古韻,最能體現出這種中式的意境。用當代的設計語言傳遞和延續傳統文化,從傳統文化的內涵入手,在傳統工藝、天然材料與現代審美之間尋找創新的結合點,讓傳統文化在創新中獲得傳承。這或許也是這個時代賦予設計師們的新使命。
微信客戶端預約您的專屬客服/可享受免費量房免費平面設計免費預算報價 到店看方案領取精美禮物專屬優惠! 
上一篇: 2020廣州設計展精彩回顧
下一篇: 便宜的裝修都賣給了誰?
